Proyectos no realizados

2012

Anteproyecto de una vivienda familiar en Santa Ponça. Mallorca

2011

Anteproyecto de una vivienda familiar en Palma. Mallorca

2010

Proyecto de una vivienda familiar en Buñola. Mallorca

2009

Anteproyecto de una vivienda familiar en el Puerto de Soller. Mallorca

2008

Anteproyecto de una vivienda familiar en Mallorca.

2007

Proyecto de una vivienda familiar en Ibiza.

2006

Estudio y proyecto de 15 viviendas familiares en Mallorca ( Can Guillot ).

2004

Estudio de un proyecto de 6 viviendas familiares en Tizi-Ouzou. Argelia. Estudio y proyecto de 100 viviendas en Tigzirt Alger. Petición de permiso de construción en curso.

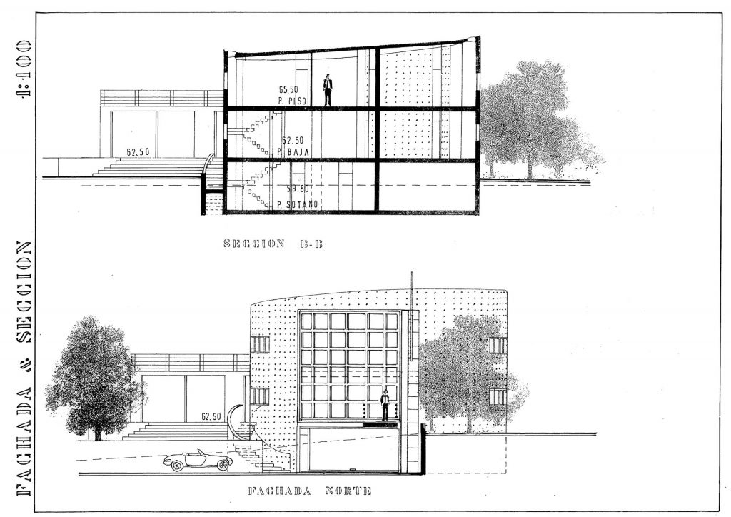
1991

Proyecto de una vivienda familiar en Camp de Mar. Mallorca.

1991

Imagen para una Cafetería en Lausana.

1990

Proyecto para un grupo de viviendas y un gimnasio en Mallorca.

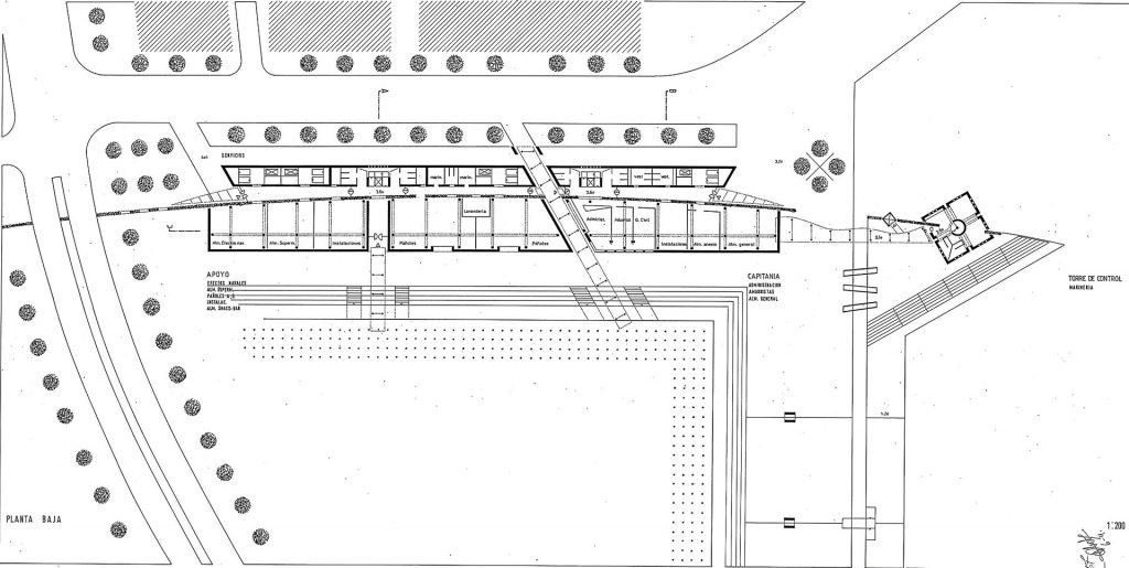
1988

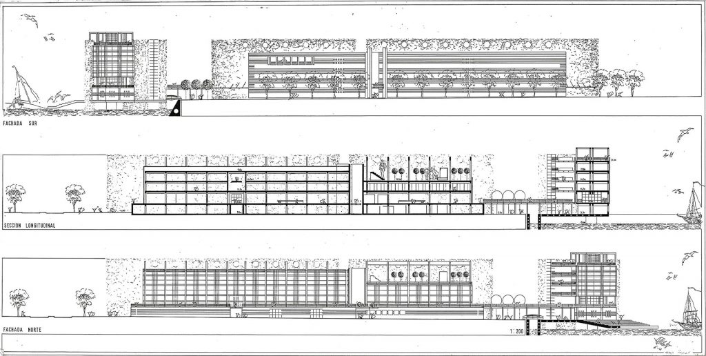
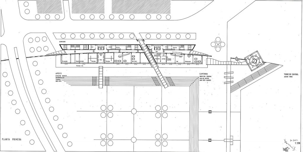
Proyecto "Edificis de la Marina i Capitania de Port-Moll Rellotge. Barcelona.

1984

Proyecto de viviendas en el distrito de Unión en Ginebra. Suiza.

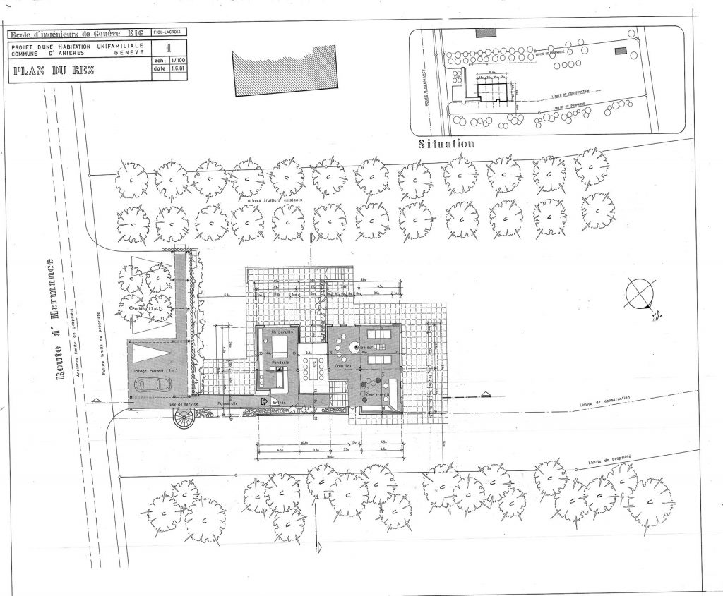
1984

Proyecto de una vivienda familiar en Anières. Suiza.