Saltar al contenido
Antonio Fiol
ARQUITECTO
Inicio
Proyectos
Proyectos realizados
Camp de Mar
Casa Son Nadal
Casa unifamiliar en Muro
Biniorella
Reforma piso en Palma
Adosados en Alcudia
Casa tradicional en Mallorca
Proyectos no realizados
Concursos
Concursos como colaborador en el Estudio Synthese. Lausanne
Colaboración en el Estudio de Arquitectura Synthese
Colaboración en el Estudio Arquitectura Luc Foretay. Lausanne.
Colaboración en el Estudio Arquitectura ACTE. Lausanne.
Trayectoria
Pequeñas arquitecturas
Publicaciones
Contacto
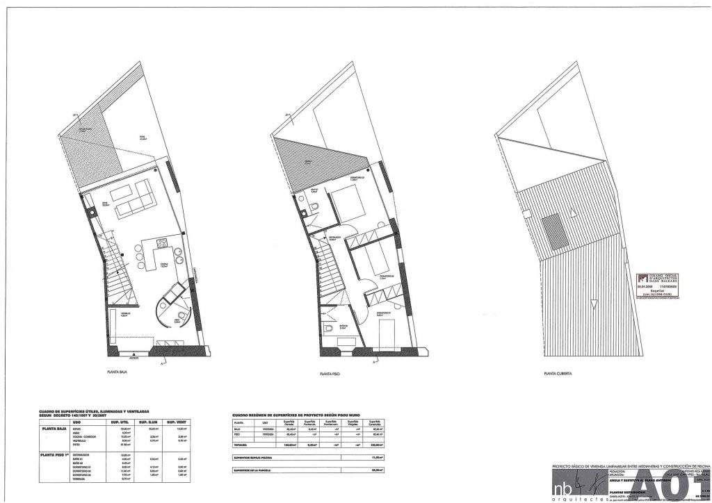
Casa unifamiliar en Muro
2011
Construcción de una casa tradicional en Muro. Mallorca.