Proyectos, reformas y trabajos como colaborador en el Estudio de Arquitectura Synthese
1991
Estudio y proyecto de un plan de asignación parcial ( locales comerciales, viviendas, oficinas ). Malley-Prairei en Lausana.
1991
Nave industrial en Lussy s/Morgues.
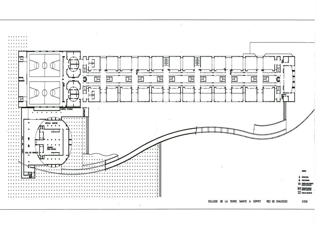
1990
Construcción de la Escuela de Secundaria Terre Sainte en Coppet. ( Jefe de proyecto ).
1990
Nave industrial en Lussy s/Morguess.
1990
Ordenación de la Place de la Navegation en Ouchy. Lausana.
1988
Casa residencial en Morgues ( Jefe de proyecto ). Realizado en 1985.